Back to top

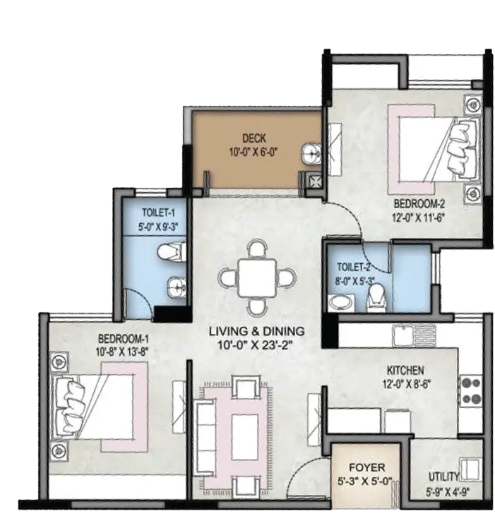
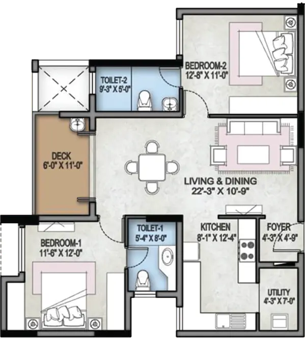
2 BHK Floor Plan at Selvam Crown

  • The 2 BHK floor plan at Selvam Crown is thoughtfully designed to offer spacious living areas, efficient layouts, and maximum comfort for modern families.
  • Located in Vellore, Selvam Crown by Vijay Shanthi Builders features well-planned 2 BHK apartments that balance functionality, privacy, and natural ventilation.
  • These homes are ideal for families seeking a premium residential lifestyle with modern amenities and smart space utilisation.​
High Rise living

Designed for Comfortable Living with Smart Kitchen & Utility Spaces

  • The Selvam Crown 2 BHK floor plan is carefully designed to suit modern urban living, offering the perfect balance of comfort, functionality, and efficient space utilisation for families and working professionals in Vellore. Every element of the layout is planned to ensure ease of movement and practical everyday living.
  • The kitchen is thoughtfully positioned with well-planned counter space and a smooth workflow, allowing for effortless cooking and daily use. Its close connection to the dining area makes family meals convenient and enhances interaction within the home. A separate utility space adds to the practicality, providing dedicated areas for laundry and storage while keeping the kitchen organised and clutter-free.
  • Beyond the kitchen, the overall floor plan focuses on comfort and liveability. The bedrooms are strategically placed to offer privacy and relaxation, while large windows ensure good ventilation and natural light throughout the apartment. Smart circulation planning reduces unused space, making the home feel open and spacious despite its compact footprint. With well-aligned living areas, balconies, and bathrooms, the 2 BHK at Selvam Crown is ideal for families seeking a modern, efficient, and easy-to-maintain home designed for long-term living.

Key Features of the 2 BHK Floor Plan

β€’ Spacious living and dining area
β€’ Well-planned bedrooms with privacy
β€’ Efficient kitchen and utility space
β€’ Natural light and ventilation in all rooms
β€’ Thoughtful circulation for daily comfort

Get In Touch With Us Today
fb tw in